Участок со строительством дома (№ 2-666-704)
Ціна: 15 500 $

Характеристики
Ціна: | 15 500 $ |
---|---|
№ об'єкта: | 2-666-704 |
Призначення: | під житлову застройку |
Площа: | 10 сот |
Адреса: Донецька, Слов'янський, Словянськ, 2-ий інтернат, Красноармейская
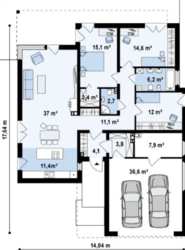
Участок Десять соток.С полным пакетом документов(разрешение на строительство,проект).Получены документы на электричество 7 кВат счетчик двух тарифный,водопровод с установленным счетчиком и докулентами,осталось только провести газ,после строительства дома.По периметру установлен капитальный забор из шлакоблока высотой 2.40 ми фундаментом под него глубиной 1м. Уже сделан цокольный этаж из блоков 100 кв.м.(так же имеется весь фото отчет строительства).Уже выложены стены беседки подходящей под проект дома.На участок проведен интернет,стоит пишущий видео регистратор и четыре камеры (можно расширить до восьми).Сделаны две выгребные ямы,одна небольшая в беседке другая 9 кубов для дома. Имеется металлический гаражик и временный туалет.Ворота откатные с хорошей фурнитурой,калитка с электро замком. Все из профильной трубы 50х50 и обшито профильным листом под дерево. Естественно проект и
вся документация отдается с продажей участка. Кто ищет участок под строительство а не под передел,идеальный вариант.